Dit gelijkvloers appartement met 2 autostaanplaatsen ligt op de Holt te Beverst (Bilzen-Hoeselt). Het appartement heeft een centrale ligging t.o.v. Hasselt en Maastricht met eetgelegenheden, voorzieningen voor openbaar vervoer en een supermarkt in de nabije omgeving. Daarbij heeft Beverst voor de liefhebbers een rijk aanbod aan fiets- en wandelroutes.
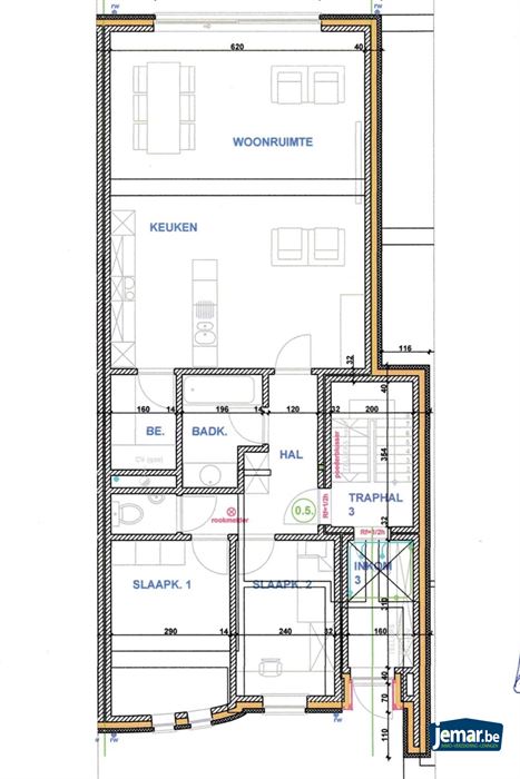
Via de inkomhal heeft u toegang tot de 2 slaapkamers, het toilet en de moderne badkamer. De grote leefruimte beschikt over een open keuken met aansluitend een berging. Verder vindt u hier de eet- en de woonkamer terug. Buiten bevinden zich het terras, 2 autostaanplaatsen en een gemeenschappelijke fietsenberging.
Pluspunten van het appartement:
- Het appartement ligt in het mooie Beverst en heeft een centrale ligging t.o.v. Hasselt en Maastricht;
- eetgelegenheden, voorzieningen voor openbaar vervoer en een supermarkt in de nabije omgeving;
- veel fiets- en wandelroutes in de buurt;
- volledig op het gelijkvloers ingericht;
- het appartement beschikt over 2 autostaanplaatsen;
- door de jaren heen goed onderhouden;
- bruikbare vloeroppervlakte van +- 100m²;
- gemeenschpapelijke fietsenberging aanwezig;
- zeer gunstig EPC met een energiescore van 93,82 kWh/m² jaar (label A);
- 4 zonnepanelen aanwezig met een totaal vermogen van 1080 Wp;
- gemeenschappelijke kosten bedragen slechts € 70/maand;
- keuringsverslag elektriciteit conform.
Wilt u het appartement bezoeken of wenst u meer informatie te ontvangen? Neem dan gerust contact op via Mike@jemar.be of 0487 96 38 96.

























